Street Front Living with 2 Car Bays!
Joel Mitton from Centrepoint Realty has the absolute pleasure to present to the Maylands market this exceptional 2-bedroom and 2-bathroom 1st floor apartment with 2 CAR BAYS!Situated in Maylands, this luxury 2 bed, 2 bath apartment will take you to where you need to be: close to the city and walking distance to great lifestyle choices all located by the beautiful Swan River.
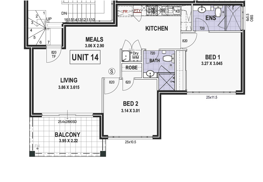
Part of a small, boutique complex of only 14. Features include:
- 2 spacious bedrooms with built-in robes
- 2 deluxe bathrooms
- Spacious open plan living area
- Exquisite kitchen with stone bench top, glass splashback and stainless steel appliances
- Timber laminate flooring to kitchen, living and dining
- Quality finishes throughout
- Reverse cycle air conditioning
- Private balcony
- Low maintenance complex
- 2 Undercover car bays and storage room
Strata - $408.75 p/q approx
Water Rates - $1,127.64 p/a approx
Council Rates - TBA
Internal living 61 sqm plus 9 sqm balcony
For more information or to arrange a private viewing, please call Joel Mitton on 0415 636 585
Disclaimer:
This information is provided for general information purposes only and is based on information provided by the Seller and may be subject to change. No warranty or representation is made as to its accuracy and interested parties should place no reliance on it and should make their own independent enquiries.
"*" indicates required fields














